Основные элементы для обустройства учебного места
Не важно, продумываете ли вы интерьер детской комнаты для двоих детей или же выбираете как обустроить компактное рабочее место, необходимо подобрать мебель таким образом, чтобы она в полной мере отвечала требованиям эргономики, а также выполняла возложенные на нее функции. Какие элементы необходимо включить в уголок школьника:
Какие элементы необходимо включить в уголок школьника:
- письменный или компьютерный стол, дизайн которого выполнен в соответствии с ростом ребенка. Это может быть как прямоугольный, так и угловой стол;
- компьютерный стул, обязательно детский, чтобы спинка обеспечивала правильную посадку;
- место для хранения книг и тетрадей, дизайн которого совпадает с дизайном стола;
- аксессуары для хранения ручек, карандашей и прочей канцелярии;
- оформление и декор, которые делают дизайн рабочего места более уютным;
- иногда школьный сектор содержит кровать: это касается наборов модульной мебели, или изделий трансформеров, когда спальное место технично прячется за фальш панелью, имитирующей шкаф.
Кроме того, дополнить рабочее место необходимо спальным местом, для этого подойдут как кровати, так и диван. Для маленькой комнаты вполне можно выбрать раскладное спальное место, например, кресло или кушетку. Для двоих детей подойдет двухъярусная кровать.
Если детей двое, они проживают в одной комнате, то можно изготовить мебель на заказ. Здесь уместным станет размещение двух письменных столов в одной стенке, которая также будет оснащена множеством полок, где дети смогут расположить аксессуары и канцелярские принадлежности.
Коробки для игрушек своими руками
Глядя на совсем не детские цены на симпатичные плетеные или пластиковые корзины в магазинах, задумываешься о том, что идея сделать цветные коробки для игрушек своими руками не такая уж и плохая. Понадобятся картонные коробки из плотного (не рифленого) картона, скорее всего из-под бытовой техники. Можно попытать счастья у знакомых: многие производители предоставляют гарантийный ремонт только при наличии упаковки. Вот и хранят люди коробки. Срок гарантии давно прошел, а выбросить упаковку забыли. Вот эти то коробки и есть — лучший для детской вариант.
Еще вариант — спросить в промтоварных магазинах. Они тоже часто получают товар в жестких упаковках. Например, в таких приходят памперсы, салфетки и т.п.
Оклеиваем бумагой
С найденных коробок срезаем крышку. В боковых стенках (узких) прорезаем отверстия-ручки. Все стыки проклеиваем изнутри скотчем.
У коробки срезаем крышку, проделываем в боках дырки-ручки
Берем разноцветную бумагу. Отлично подходит оберточная, в которую пакуют подарки. Она плотная, есть большое количество разных рисунков. Можно использовать и бумагу для скрапбукинга. Если отделка будет из бумаги разного цвета, нарезаем на полосы равной ширины, если оклеивать будем одним рисунком, отмеряем полосу по высоте коробки.
Приклеиваем бумагу
Берем клей (ПВА), кисточкой смазываем поверхность коробки и начинаем клеить с угла. Стараемся клеить без пузырей, приглаживая бумагу постепенно, от края до края. Следующий лист кладем с небольшим заходом не предыдущий. Так, пока не оклеим все поверхности.
Оформляем ручки
Посмотрев на свет, вырезаем ножницами ручки. Чтобы край был более аккуратный, проклеиваем срезы ручки тонкой полосой бумаги. ТАкже полосой оформляем верхний срез.
Готовая самодельная коробка для игрушек
Обшиваем тканью
В этом случае все углы коробки можно проклеить скотчем с двух сторон — дольше служить будет. Далее берем ткань и вырезаем по размерам коробки два комплекта заготовок. Один строго по размерам, плюс припуск на швы, второй на 1 см меньше и тоже с припуском. На швы добавляем по 0,5-1 см с каждой стороны. Можно раскроить заготовку сразу с виде креста, но так расход ткани получается больше — отдельными кусками экономнее.
Сшиваем детали сначала в виде креста, потом делая из заготовки мешочек. Примеряем на коробку. Один (больший) натягиваем снаружи, второй расправляем внутри.
Примерка
Теперь берем универсальный клей и приклеиваем ткань по периметру дна внутри и снаружи. Затем проклеиваем по углам. Так ткань не будет смещаться.
Края обоих мешочков подворачиваем внутрь, обшиваем коробку по периметру вручную.
С помощью ножниц прорезаем ручки. Только не вырезайте большие куски. Надо оставить около 1 см «лишней» ткани. Ее заворачиваем внутрь, подшивая ручку.
Подшитая ручка
Оформив ручки, получаем готовую коробку для хранения игрушек.
Коробок готов
Мебель для хранения
Комоды. Существует множество видов детских комодов. Они могут быть раскрашены тематическими рисунками из мультфильмов и станут оригинальным дополнением к дизайну интерьера детской комнаты.

Игрушки в системе Труфаст от Икеа и в ящиках под кроватью.
Ящики под кроваткой или шкафом. Это тоже весьма удобный вариант хранения игрушек. Если нет специального встроенного ящика, можно купить большой кофр на молнии и убирать его вместе с игрушками под мебель.


Кровать-чердак. Это вариант для подросшего ребенка, который спит на подростковой кровати. В таких кроватях спальное место находится на втором этаже, а внизу расположена игровая зона, где можно удобно расположить все ящики и контейнеры с игрушками. Внизу также может находиться учебная зона и шкаф для одежды. Вариантов таких кроватей много.

Стеллажи с коробками. Одно лишь наличие коробок с игрушками не избавит вас от беспорядка в детской комнате. Ведь их нужно куда-то ставить. Для этой цели прекрасно подойдет стеллаж с открытыми полками.




Детский стол-трансформер или стол со стеллажами. Еще одно оригинальное решения для деток младшего возраста. Такой стол совмещает в себе и место для творчества, и систему хранения.

Распространенный вариант – шкаф-купе. В нем с легкостью уместятся и одежда, и обувь, и игрушки. Если вещей у малыша очень много, можно выделить весь шкаф под хранения игрушек.

И еще несколько советов…
1. Корзины на шкафу. Чтобы малыш не смог достать корзины, и разбросать их содержимое по комнате, уберите их на высокий шкаф.

2. Магнитные рейлинги на стене. Интересная идея хранения машинок для мальчиков. На стену крепится магнитный рейлинг, и на него вешаются различные машинки. Такой способ станет интересным дизайнерским решением оформления детской для мальчика.

4. Оборудованная скамья. Это многофункциональный предмет мебели. Если выдвинуть большой ящик и поставить маленький стульчик — скамья превратится в письменный стол. Очень удобное решение для экономии пространства в небольшой детской. Такие скамьи можно сделать на заказ.




Создание любимой коробки малыша
Интерес ребенка к игрушкам угасает быстро. Поэтому возьмите самую большую коробку, какую найдете у себя дома, и сложите туда те игрушки, с которыми малыш будет играть сегодня. В конце дня эти игрушки будет гораздо проще разложить на свои места. На следующий день сложите в эту коробку совершенно другие игрушки, так, чтобы ни одна из вчерашних игрушек не попала в нее сегодня. И так каждый день. Таким образом вы экономите для себя время на уборке, а малыш будет доволен — ведь у него новые игрушки каждый день. Когда все игрушки будут разложены по коробкам, начните новый круг. Ведь все новое – это хорошо забытое старое.

Какой бы способ хранения игрушек вы ни выбрали, важно, чтобы ребенку было интересно заниматься их уборкой. Прививайте ему любовь к чистоте и порядку, и вы увидите, сколько свободного времени у вас появится для общения с вашим малышом, когда игрушки будут убираться вовремя и на свои места
Вдохновите нас — поделитесь материалом с друзьями в соцсетях:
Реальные фото детских комнат:
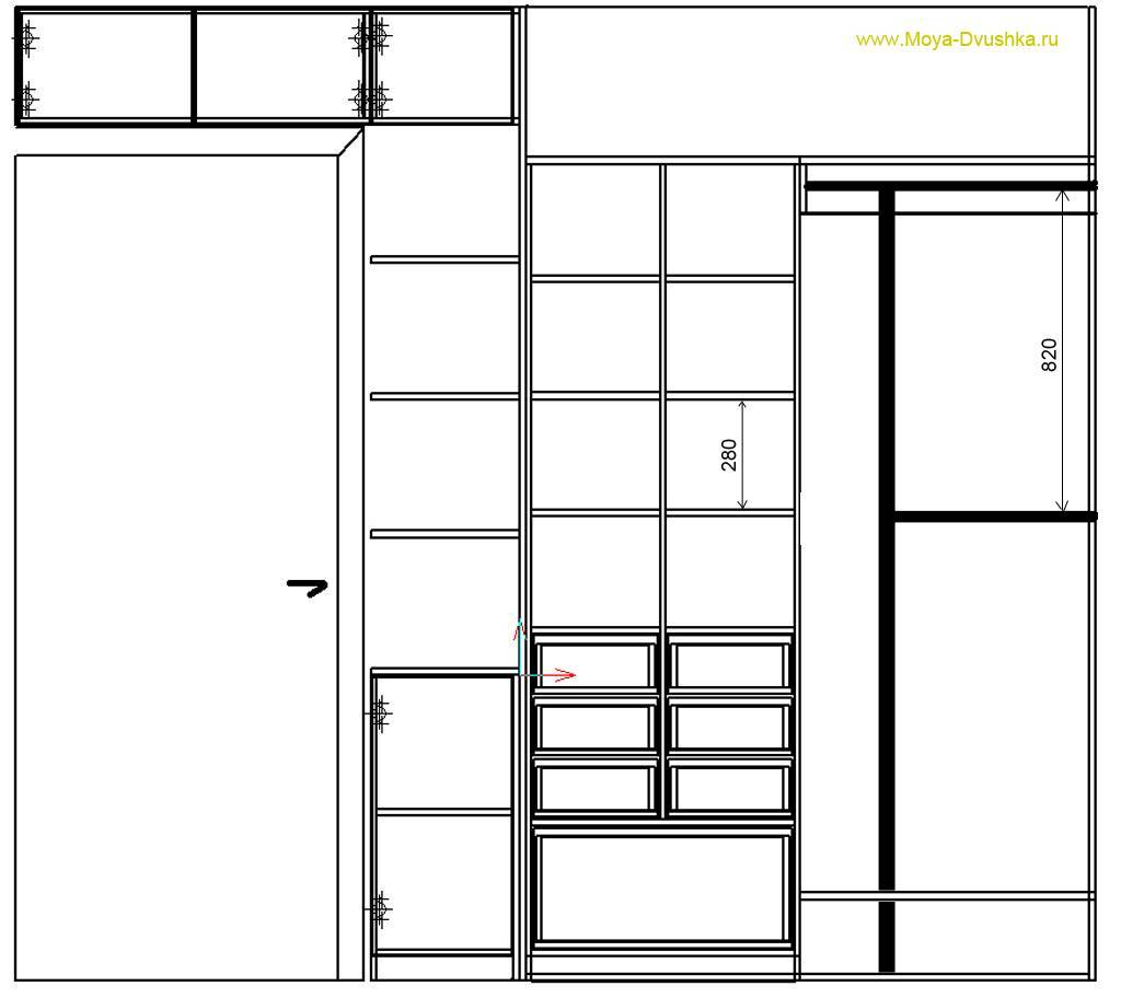
Формы и размеры
Комнату ребенка может дополнить мебель необычной формы. Это отличный способ использовать пространство максимально эффективно и создать в комнате комфортную атмосферу для игр, работы и отдыха обстановку. Разнообразие форм данного вида конструкций не может не удивлять. Игрушки нужно хранить в невысокой мебели или на нижних полках, куда малыш сможет дотянуться.
По форме шкафы бывают:
- угловые;
- линейные.
Прямой
Угловой
Угловые модели можно разделить на еще несколько подкатегорий:
- г образные;
- п образные;
- трапециевидные;
- радиусные;
- треугольные.
В детскую комнату, например, п образный шкаф, может не подойти. Эта форма слишком большая, но в тоже время, если правильно подойти к заполнению шкафа и распределить зоны хранения внутри него, то это может стать отличным местом для детских вещей. Туда поместится одежда, игрушки и даже школьные принадлежности (если добавить модуль с полками).
Размеры мебели напрямую зависят от предпочтений покупателя и площади помещения, где ее планируется установить. Это может быть небольшой шкаф с размерами 149х149 см с открытыми полками или часть модульной конструкции. Но все же от больших габаритных моделей лучше отказаться, отдав предпочтение небольшим вариантам, к примеру, 600*320*650 мм. В этом случае ребенок сможет самостоятельно до необходимой ему вещи. Отличным вариантом считается угловая модель с небольшими размерами 320*320*650 мм.




На виду
Хаос хочется укротить, распихав по ящикам и шкафчикам, но иногда видимость помогает поддерживать визуальный порядок.
Чтобы мотивировать школьника следить за порядком, можно предложить занимательную форму хранения вещей. Например: на выходных развешивать на напольной штанге только ту одежду, которую ребёнок собирается носить в течение недели.

На виду также имеет смысл расположить канцелярию, которая используется каждый день. Разгрузите рабочий стол. Повесть на стену над ним открытые полки, пластиковые карманы-органайзеры, рейлинг со стаканчиками для ручек, линеек и карандашей, или пегборд.

Пегборд — это специальная перфорированная доска, на которую можно крепить органайзеры, полки, лотки, календарь, рисунки и школьное расписание.
Красивые примеры в интерьере
В оформлении учебного места ничего не нужно придумывать с нуля: достаточно просто вдохновиться уже реализованными интересными идеями, воплотить их в детской.
Например, располагая столешницу на подоконнике, многие не учитывают, что так много места для уроков ученику просто не нужно. Поэтому вместо стола от стены до стены сделайте стол + 1-2 скамьи с подушками, на которых комфортно читать книги или просто отдыхать в перерывах.
Оборудуя рабочее место для двоих, важно разделить территорию, чтобы каждый ребенок понимал где заканчиваются личные владения, начинаются чужие. Для этого используют цвет (как на фото справа), свет или физические перегородки — глухие либо прозрачные
Проектируя комнату под школьника учтите необходимость рабочей зоны изначально, вписывая в дизайн. Например, в проекте изображенном ниже, стол, кровать, шкафы, полки собраны в цельную гармоничную комбинацию.
На фото мебельный гарнитур для детской в едином стиле
Рабочее место школьника требует от дизайнеров особого внимания. Проектируя эту зону детской, помните — ребенку предстоит проводить в ней достаточно много времени, поэтому все должно быть продумано до мелочей, удобно в первую очередь маленькому хозяину пространства, а не родителю.
Идеи для хранения игрушек в детской комнате
Открытый стеллаж. В нем размещают специальные емкости для игрушек: корзины, ящики или выдвижные пластиковые контейнеры.
Кровать-чердак — отличное решение для небольшой детской комнаты. Спальное место для ребенка размещено на «втором этаже», а для хранения игрушек можно использовать стеллажи/полки или лестницу с модулями-ступеньками.
Пространство под мебелью. Для маленькой детской комнаты практично совмещать системы хранения игрушек с другими предметами интерьера. Очень удобно разместить выдвижные ящики или тканевые корзины под кроватью.
Можно оборудовать под окном уютное место для отдыха — скамейку, под которой разместить выдвижные ящики для игрушек (в Озоне, в Май-Шопе).
Как вариант, можно предложить организовать под столом место, где будут лежать канцелярские принадлежности, настольные игры или книги.
Особый интерес в вопросе, где хранить детские игрушки, представляют пуфы с откидными сидениями. В них можно спрятать и мягкие игрушки, и конструктор, и еще много полезных вещей.
Скрытые возможности. Стены, двери и торцы шкафов – все эти поверхности могут быть задействованы под размещение органайзеров для хранения разных мелочей и мягких игрушек.
Вы сами можете сшить настенные карманы из плотной красивой ткани или полиэтилена. Размер выбирайте в зависимости от того, что в них планируете хранить. Такие текстильные кармашки (Алиэкспресс) станут оригинальным украшением интерьера.
Полки и полочки, разных размеров и глубины
Важно, чтобы ребенок сам мог достать все то, что на них хранится
Корзины. Очень симпатичный вариант — хранение игрушек в комнате ребенка в плетеных или текстильных корзинах (Алиэкспресс). В них можно убрать те игрушки, которыми он временно не пользуется.
Ящики на колесах (в Озоне, в Май-Шопе). Еще одна интересная идея. Ребенок самостоятельно сможет перемещать их по всей игровой зоне. Ящики можно приобрести или сделать самим,
Сундук. Отлично подойдет для организации пространства детской комнаты. Сундук, как правило, достаточно большой и может вместить много детских игрушек.
Сумка-мешок (на Алиэкспресc). Два в одном: мешок для хранения игрушек – это ещё и игровой коврик. Хранение деталей конструктора Лего, машинок, мячиков, кубиков перестанет быть проблемой – все это легко собирается одним движением.
Как хранить мягкие игрушки
Для хранения мягких игрушек удобно использовать: напольные или подвесные корзины, полки, текстильные настенные кармашки.
Организация и хранение Лего
Для хранения фигурок и деталей конструктора Лего подойдут: различные контейнеры и боксы для мелочей, лотки для метизов, мешочки из ПВХ, коврик-мешок, органайзер с прозрачными кармашками.
Посмотрите идеи для вдохновения:
Хранение игрушек в ванной
Предлагаем идеи как использования различные органайзеры для хранения игрушек в ванной комнате (Озон, Алиэкспресс)
Хранение материалов для творчества
Создайте зону для творчества, чтобы упорядочить творческий процесс ребенка. Это может быть просто стена, вдоль которой развешаны ёмкости с карандашами и мелками. Оклейте её обоями-раскрасками или покройте краской с эффектом меловой доски. Как вариант — детский столик. На стене, к которой он примыкает, развесьте работы юного художника — таким образом вы решите вопрос с хранением детских рисунков.
Взгляд в будущее
О перспективе скорейшего взросления молодые родители часто и не задумываются, ведь эйфория от того, что ребенок идет в первый класс не позволяет предусмотреть такое очевидное взросление. Ежегодно менять мебель дорого, да и не имеет особого смысла. Намного удобнее купить мебель-трансформер, которая позволит регулировать высоту и угол наклона в зависимости от роста и индивидуальных особенностей ребенка. Стол с возможностью регулировки высоты подойдет как нельзя лучше, ведь ребенок может расти невероятно быстро. С компьютерными креслами дела обстоят проще, так как практически все модели позволяют подогнать кресло под любое телосложение и рост. Стол должен быть широким, и на нем следует установить компьютер.
Ящичков для хранения много быть не может, ведь книги, тетради и прочие документы с годами будут скапливаться, да и при наличии идеального порядка, свободного места в комнате будет больше. Ящики позволят поддерживать такой необходимый для школьника порядок и предоставят возможность ребенку самостоятельно организовать собственное рабочее пространство.
Другие варианты как хранить учебники и тетради
Плотная папка для хранения тетрадей не позволяет им деформироваться. Но такой вариант не слишком удобен. Как показывает практика, лучше держать тетрадь вместе с учебником по тому же предмету.
Вертикальный органайзер с разделителями позволяет упорядочить школьные принадлежности в соответствии с частотой использования. В этом случае срок хранения тетрадей заметно увеличится, потому что их не придется постоянно перекладывать с места на место в поисках нужного конспекта.
Такая подставка – органайзер может стоять прямо на письменном столе, и все ее содержимое всегда будет на виду.
Не стоит выбрасывать старый комод. Он еще может пригодиться в качестве хранилища школьных принадлежностей. Скучную мебель можно украсить декоративными элементами и яркими наклейками с изображениями любимых героев ребенка. Тогда он с удовольствием будет использовать такое хранилище.
Ящик для постельного белья, которым оснащены современные диваны и детские кровати, вмещает в себя множество предметов. Кроме игрушек, в нем можно держать книги и тетради, которые школьник пока не использует.
Организовать правильное хранение тетрадей и учебников в детской комнате — это всего лишь часть задачи
Важно с самого раннего возраста приучить ребенка к порядку. Если он научится бережно обращаться со своими игрушками, его книги и школьные принадлежности смогут рассчитывать на такое же отношение к себе
Выбираем стул или кресло для школьника
Для современных школьников вариаций удобных кресел множество. Производители, в том числе и отечественные, выпускают линейки кресел на перспективу. В этом случае, когда ребенок начнет расти, то кресло можно будет подстроить под его анатомию. А вот стул на вырост покупать не стоит, так как спинка будет искривлена, начнет болеть и появится непреходящее чувство усталости, не говоря уже о сколиозе.
Эргономические модели пользуются наибольшей популярностью, так как они учитывают все анатомические особенности маленького человечка. В первую очередь стул должен отвечать таким требованиям:
подлокотников быть не должно;
поверхность обшивается только натуральными материалами;
сидушка должна вращаться во все стороны;
уровень наклона и высоты спинки должны регулироваться.
Ортопедический школьный стул
Большим и слишком мягким сидение быть не должно — это может привести к искривлению позвоночника. Кожу лучше не использовать, в том числе и ее качественные аналоги. После продолжительного сидения на таких стульях, спина и и попа начнут потеть, что приведет к существенному дискомфорту. Правда, такую проблему можно исправить за счет тканевых чехлов или небольших подушек, но тогда смысла переплачивать за внешний вид такого сидения нет. Заводские чехлы должны сниматься, ведь со временем они придут в негодность и будут подлежать замене.
Все углы мебели не должны иметь острых углов и каких-либо существенных неровностей. Эксплуатационный срок качественного изделия составит не менее пяти лет.
| Соотношение роста и высоты изделия (стула) | |
| Рост более 175 см | 46 см |
| Рост 160 – 175 см | 42 см |
| Рост 145 – 160 см | 38 см |
| Рост 130 – 145 см | 34 см |
| Рост 115 – 130 см | 30 см |
| Рост 100 — 115 см | 26 см |
Как грамотно организовать хранение?
Чтобы ребенку было комфортно делать уроки, столешница должна оставаться максимально свободной. При этом доступ ко всей необходимой канцелярии, книгам, учебным материалам должен оставаться простым, удобным.
То есть организовать зоны хранения необходимо непосредственно в рабочей зоне — здесь как на кухне, ходить от стола к шкафу через всю комнату будет крайне неудобно.
Сохранять порядок помогут:
- Ящики стола. В них складывают мелкие предметы, а также вещи, которыми пользуются постоянно: ручки, карандаши, маркеры, ножницы, скрепки, тетради.
- Открытые полки. Обычно используются для книг, альбомов, тетрадок.
- Закрытые системы хранения. Прячут предметы не ежедневного «спроса»: альбомы для рисования, краски, пластилин, запасы офисной бумаги. Сюда же убирают принтер, чтобы крупная техника не мешала на столе.
Совет! В столе нет ящиков? Повесьте над ним рейлинг со стаканчиками — в них удобно ставить ручки, фломастеры, карандаши. А если добавить несколько крючков — решится проблема с хранением ножниц или очков. Вместо рейлинга используют перфорированные доски: компактные при всей своей многофункциональности.
Хранение игрушек в первый год жизни малыша
До года обычно не возникает вопросов с их хранением. Сначала они просто лежат в небольшой коробке, и мама сама достает погремушку грудничку на свой выбор. С возрастом игрушек становится больше, тут хорошо выручит корзина. Когда малыш научится сидеть, ползать и станет более самостоятельным, ее можно подставлять к нему поближе, чтобы он сам вытаскивал понравившуюся погремушку. После игры собрать все не сложно — просто покидал их назад и готово.
Крупные игрушки, типа кубика-сортера, пирамидки, ходунков-толкалок, удобно ставить на нижние полки или пол вдоль стены.
До полутора лет сортировать, раскладывать по полкам, коробкам игрушки малыша бессмысленно. Лучше использовать простую большую корзину или контейнер с прозрачными стенками, в которые просто свалить все кубики, машинки, животных, кукол, погремушки.

В 1-1,5 года малыш еще не в полную меру может самостоятельно играть игрушками по назначению. Нет четкого понимания, разделения их по тематикам. Поэтому игры и хаос после них выглядят обычно так: ребенок достает все подряд из корзины или коробки бросает на пол, затем берет что-то другое, потом снова играет с тем, что было вынуто ранее, и так до бесконечности. В итоге весь пол усыпан мячиками, машинами, куклами, убрать которые по категориям в «правильные» корзины, коробки, полки займет немало времени. Поэтому и удобно все сваливать в контейнер.
Для мелких кубиков, конструктора, пазлов можно сделать тематические коробки и подписать их.
Изделия для хранения игрушек своими руками
Где хранить детские игрушки вопрос серьезный, если нет денег на специальную мебель или просто не хочется тратится на такие изделия можно все сделать самостоятельно. Шкаф для хранения игрушек многие изготавливают самостоятельно из подручных средств, но здесь понадобятся определенные навыки и умения.
Необходимые материалы
Прежде всего необходимо подготовить материалы чтоб воплотить идеи для хранения детских игрушек. Для разных видов понадобятся и разные материалы:
- кусок плотной и пестрой ткани;
- старые полки или материалы для их изготовления;
- картонные коробки;
- магнитная лента;
- саморезы;
- молоток;
- гвозди.
Кроме этого, обязательно наличие смекалки, немного фантазии и креативный подход к решению проблемы.
Советы по изготовлению
Мебель для хранения игрушек в детской можно сделать своими руками, однако для этого придется приложить некоторые усилия и освободить несколько вечеров. Главными показателями таких изделий должны стать:
- Безопасность, ребенок не должен пораниться об готовое изделие.
- Легкость в применении, место для хранения игрушек должно быть доступным для малыша.
- Привлекательный внешний вид, желательно чтоб готовая система хранения игрушек в детской вписывалась в уже существующий интерьер.
Идеи хранения игрушек
Своими руками при желании можно создать целые системы для детской комнаты, при чем разместить там можно будет не только игрушки, но и одежду малыша. Идей для самостоятельно изготовления очень много, можно посмотреть наглядные примеры в интернете, а можно создать что-то свое эксклюзивное. Чтоб не задаваться вопросом, как хранить игрушки в детской стоит попробовать воплотить в жизнь хоть несколько нижеприведенных примеров:
- Проще всего сделать полки для хранения, для этого понадобиться минимум времени и материалов. Несколько досок, обязательно обработанных, просто прикрепляют к стене. На них сразу же можно разложить все что лежало на полу или в других местах. Прикрученные полки можно обклеить яркой самоклейкой или задекорировать другими материалами.
- Для мелких игрушек, особенно конструктора, можно сшить мешок для хранения. Хорошо будет сделать прозрачную вставку, по которой ребенок определит, что находится внутри.
- Стеллаж для хранения в комнате позволит разместить все в одном месте, при необходимости малыш сможет сам подойти и выбрать желаемый предмет. Складывать тоже сможет самостоятельно, при чем расставит так, как захочется ему.
- Хранение машинок из металла часто становиться проблемой, их можно найти в любой части квартиры. Чтоб все было в порядке стоит прикрепить на стену специальные магнитные полосы, с их помощью машинки будут закреплены на видном месте, да и осмотреть коллекцию получится быстрее.
- Хранение игрушек в однокомнатной квартире такого типа достаточно проблематично, из строго ящика и трубы нужного размера можно соорудить органайзер именно для машинок. Трубу нарезают на части заданного размера и крепят к ящику, в каждую ячейку ставят по одной модели.
- Хранение мягких игрушек можно проводить разными способами. Самым необычным и полезным, наверное, будет изготовление из них большого пуфа-кресла. Из подходящей ткани делают выкройки и шьют чехол. Далее его наполняют мягкими игрушками, которые есть в доме от самых маленьких и до больших. Затягиваем шнурок и все, мягкий пуф готов, а места и порядка в комнате стало намного больше. Еще мягкие игрушки можно расставить по полкам и на уже присутствующей мебели, недостаток этого метода в том, что периодически придется очищать их от оседающей пыли.
- Компактное хранение игрушек зависит от их вида, для кукол небольшого размера можно пошить чехол с прозрачными карманами и повесить его на двери.
- Для детских игрушек можно соорудить органайзер, для этого сбивают небольшой ящик или используют уже готовый деревянный поддон. Его необходимо обтянуть тканью или применить другой декор. По желанию можно поставить перегородки. Желательно ящик выбирать небольшой высоты, тогда он легко поместится под кроватью, где всегда есть пустое место.
- Плетеная корзина больших размеров отлично подойдет для хранения мягких игрушек. Достаточно просто поставить ее в свободном углу и заполнить.
- Для детских игрушек в ванной часто используют пластиковые контейнеры с отверстиями для мыла и мочалок. Так они будут всегда под рукой, а лишняя влага быстро с них уйдет.
В чем хранить детские игрушки каждый родитель решает самостоятельно, но про технику безопасности стоит помнить всегда.
Как хранить игрушки в детской разобрались, наилучший способ каждый выберет самостоятельно, отталкиваясь от финансовых возможностей и наличия свободного места в жилище.
Хранение детской одежды: 7 лучших идей для родителей
Вы устали раскладывать вещи ребенка по своим местам и объяснять ему, что рубашки в шкафу должны висеть, а носки лежать? Вашему вниманию –простые и эффективные советы
1. Больше полок и ящиков, коробок и корзин
Если вы легко раскладываете ровными стопочками одежду в своем шкафу с тремя полками, не ждите, что ребенок дошкольного и даже школьного возраста будет брать с вас пример. Чем младше дети, тем важнее для них зонирование – везде и во всем.
Вы отделили пространство для хранения вещей от места для игр и сна. Теперь раскладываем детский гардероб по ящикам и коробкам: тонкие носки в одном месте, теплые носки в другом… Майки и футболки мы тоже вместе не убираем. Научите ребенка класть определенную вещь в определенную «ячейку», со временем он освоит эту нехитрую науку.
2. Ищите креативные подходы
Хотите видеть в шкафу ребенка вещи одного цвета на одной полке, а вещи другого цвета на другой? Тогда не подпускайте малыша к шкафу, одевайте его сами и забудьте думать, что перед вами стоит трехлетняя самостоятельная личность. Заботливые и при этом готовые к некоторым трудностям родители решают проблему иначе. Если малыш не справляется с плечиками, выручают крючки. Носки можно развесить на специальных прищепках.
3. Превратите поддержание порядка в игру
В детской комнате не может быть обычного шкафа, гораздо интереснее, если там стоит замок для вещей, где королевскими особами являются нарядные костюмы, а их верноподданными –вещи «на каждый день». А ящик для носочков в виде ботинка? Не нужно быть великим мыслителем, чтобы научиться всегда находить правильное место парным вещам. В комнате девочек можно сделать небольшой подиум и превратить каждую примерку платьев в показ мод для папы!
4. Найдите «хранителя»
Материал, цвет, фактура… подходит ли мебель по стилю? Сочетается ли с обоями и текстилем? Взрослым столько всего нужно учесть при выборе шкафа. И разумеется, многие идею яркого образа мультгероя на дверцах отвергают сразу: через некоторое время ребенку надоест эта сказка или, возможно, рисунок начнет портиться.
Но недальновидно именно отказаться от идеи купить «детскую-детскую» мебель, остановив свой выбор на более классических вариантах. Разве ребенок оставит на полках шкафа беспорядок, если за ним зорко следит гениальный сыщик из «Бременских музыкантов» или Молния Маккуин из «Тачек»? К тому же играть в комнате с «другом» гораздо интереснее.
5. Сделайте некоторые вещи доступнее
Повседневная одежда, вещи для дома – все это должно быть в зоне досягаемости ребенка (лучше у пола). Выручают коробки с текстильными вставками, корзины-сетки, в которые вы кладете 3-5 комплектов. Даже двухлетний кроха может переодеться самостоятельно, если он облился или испачкался красками. Вещи «на выход», нарядную одежду лучше размещать выше уровня глаз малыша, развешивая на плечиках.
6. Попробуйте какое-то время обходиться вообще без шкафов и комодов
Представляете, как интересно распределять одежду по коробкам у кровати и развешивать на натянутую посреди комнаты веревку?! Ребенок привыкнет к поддержанию порядка, если часть вещей будет раскладывать сам (а часть вещей вы будете пока держать в комоде в своей спальне). Кстати, если и сыну или дочери, и маме понравится подобная идея, можно продумать новый дизайн детской комнаты.
7. Поставьте шкаф для вещей ребенка не в детской комнате
Что если шкаф будет стоять в коридоре и служить входом в комнату-«Нарнию»? Порядок в вещах будет поддерживаться просто потому, что иначе в помещение не попасть. Кстати, если у ребенка «двухуровневая» комната, то вместо комода предметы одежды отлично вместит в себя лестница с ящиками-ступеньками.
Таким образом, поддержание порядка в детской комнате перестанет быть для вас проблемой, а станет обязанностью ребенка. С которой, он будет справляйся «на ура» если правильно научить его убираться.
Как можно избавиться от игрушек
Выделите немного времени, призовите на помощь здравый смысл и избавьтесь от ненужных игрушек, если вы еще этого не сделали. Это могут быть некомплектные пазлы и лото, сломанные игрушки или те, которые просто вам не нравятся или в которые ребенок совсем не играет, игрушки, из которых ребенок вырос или до которых очень нескоро дорастет, однотипные и т.д.
Как можно избавиться от игрушек, чтобы в комнате оказалось как можно меньше ненужных предметов? Избавляться можно по-разному — сломанные и испорченные, понятно, стоит выбросить, игрушки «на вырост» сложить в коробку или пакет, надписать на нем предполагаемый подходящий для игры возраст и убрать подальше, однотипные игрушки можно отдать, продать или обменять, разместив объявления в Интернете или на доске объявлений возле детской площадки, где вы обычно гуляете.
Оставшиеся игрушки, если их много, можно разделить на 2 — 3 набора для организации круговорота игрушек. Меняйте игрушки из этих наборов примерно раз в неделю (ориентируйтесь по ребенку: если видите, что он еще очень увлеченно играет с чем-то по прошествии недели, можно и повременить с заменой этой игрушки).
Идеи организации игрушек в детской комнате малышей и дошкольников
Прозрачные контейнеры для хранения игрушек – выход для мамы ребенка любого возраста:
- Во-первых, большим плюсом является то, что можно упорядочить огромное количество разнообразных предметов (не только игрушки, но и канцтовары, книги и т.д.).
- Во-вторых, это красиво смотрится — особенно, если наклеить на каждый ящик наклейку с обозначением того, что внутри.
Мамам мальчиков, которые не представляют своей жизни без машинок, подойдет вот такая оригинальная идея. Небольшие узкие полки не занимают много места и не съедают пространство, зато позволяют всегда любоваться любимыми игрушками.
Теперь точно можно быть уверенным в том, что любимая машинка не потеряется, а ваше чадо будет с гордостью демонстрировать свою экспозицию друзьям.
А вот девчонкам любого возраста для хранения кукол подойдет настенный органайзер. Если его повесить на дверь, то не пострадает ни один сантиметр пространства в детской. Плюсом является и то, что можно самостоятельно подобрать ткань для него, а значит, он идеально впишется в любой интерьер.
Таким же образом можно хранить краски, карандаши, если сделать кармашки прозрачными, а также гигиенические принадлежности, которые должны быть всегда под рукой.
Важно организовать хранение игрушек таким образом, чтобы по максимуму сохранить свободное пространство. Поэтому очень удобно подбирать специальную мебель с областями для хранения: табуреты, скамейки, и даже стол
В организации мест хранения под столом множество плюсов – все находится рядом с игровой зоной, и с минимальной вероятностью будет разбросано на полу или перекочует в другие комнаты. Еще одно преимущество – все важные вещи находятся в зоне досягаемости для ребенка. Это значит, что ему будет проще не только доставать их, но и учиться наводить порядок после игры.
Обязательно нужно задействовать место под кроватью. Выпускаются специальные модели кроватей с выдвижными ящиками, но можно прекрасно обойтись отдельными ящиками, купленными в Икеа – бюджетный и практичный вариант. Можно сделать их и самостоятельно – это не сложно, и вы получите вещь, которая полностью подойдет и по цвету, и по размерам. В таких ящиках можно хранить что угодно: игрушки, книги, постельное белье.
В любой детской можно найти огромное количество мягких игрушек. Они занимают кровать, полки, но все равно не помещаются. Для их хранения можно использовать гамак – сделать его совсем не сложно: понадобится отрез ткани и 2 крючка, прикрепленных к стене. Такой вариант поможет освободить место без ущерба пространству. Постарайтесь разместить его так, чтобы ребенок мог сам доставать и складывать игрушки.
Кармашки на кровать также подойдут для хранения вещей детей любого возраста. Мамы совсем маленьких деток используют их для салфеток, погремушек. Ребенок подрастает, меняются его потребности, однако актуальность места, где все будет под рукой не пропадает.
В такие кармашки можно поставить любимые книги и игрушки, которые будут ждать вашу кроху вечером. В небольших по площади комнатах это — прекрасная альтернатива прикроватной тумбе.
Пространство на стенах нужно использовать по максимуму, но избегать загромождения. Узкие полки идеально позволяют хранить небольшие игрушки. Позже на них можно будет поставить книги и грамоты. Разместив полки одну над другой, практически у самого пола, вы сэкономите пространство и позволите ребенку самому выбирать, чем заняться. Умение делать выбор – ценный навык взрослой жизни, который следует развивать с детства.
Очень удобен для хранения вещей в детской вот такой стеллаж. Его конструкция проста, но это не делает его хуже. Всего одно отличие от стандартных полок с ящиками – здесь они расположены под наклоном. Но эта деталь является ключевой. Ребенок самостоятельно и быстро может найти среди всего многообразия вещей то, что ему нужно.
При желании, такой стеллаж можно собрать своими руками.


































